Здам довгостроково офісне приміщення
Київ, р-н Подільський, Верхний Вал ул., 10
ID: 5279151
183 470 грн
К-ть приміщень
6
Поверх
4/5
Тип стін
цегла
Загальна площа
250 м2
Стан
житлове
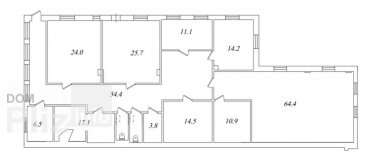
Аренда современного офиса в центре Киева на Подоле в Бизнес Центре класса " В + " по адресу улица Верхний Вал. Этаж 4/5 этажного нежилого здания. Полезная площадь офиса 217.4 м2. Арендуемая площадь офиса 250 м2 ( 10 % коэффициент BOMA ). Фотографии и планировка соответствуют реальности. Планировка - open space + кабинеты/переговорные, кухня, санузлы, кладовки, серверная. Состояния - современный ремонт. Офис оснащен всем необходимым для комфортной и безопасной работы. Отличная транспортная развязка, в пешей доступности остановка обществееного транспорта и станция метро Контрактовая Площадь 5 минут пешком.Оснащения Бизнес Центра:1. Система кондиционирование при помощи фанкойлов.2. Система приточно-вытяжной вентиляции.3. Полный климат-контроль HVAC.4. Автономное отопление.5. Оптоволоконные линии связи.6. Система контроля доступа в здании.7. Противопожарная система безопасности.8. Круглосуточная физическая охрана.9. Видеонаблюдение.10. Лифты - 5 шт. фирмы OTIS.11. Подземный паркинг и наземная парковка.12. Генератор.Коммерческие условия:Арендная ставка - 17 $/м2 с эксплуатации + НДС + коммунальные услуги.Номер оголошення на сайті компанії: RC-201-273-DP.
Створено : 05.02.2026
183 470 грн
4 250 $
Радион Попов
посередник
Створено : 05.02.2026
Переглянуті
Оренда офісу кабінетного типу площею 250 м2, кабінетної системи, 12 кабінетів. Поділ, станція метро Тараса Шевченка. Вартість оренди - 220 грн/м2 + ПДВ + комунальні. Пропозиція без комісії для орендаря....
05.02.2026
Поверх:
2/3
Загальна
250 м2
220 грн
Оренда офісу площею 250 м2 в сучасному бізнес центрі в пішій доступності від станції метро Тараса Шевченка 3 хвилини. Працює генератор 250м2 - третій поверх, доступ 24/7 -паркування •можливість реєстрації юр.ад...
05.02.2026
Поверх:
3/4
Загальна
250 м2
71 000 грн
Аренда просторного офиса в центре Киева по адресу улица Григория Сковороды. Этаж 3/4 этажного нежилого здания. Общая площадь офиса 235 м2. Фотографии и планировка соответствуют реальсности. Планировка - рабочие...
05.02.2026
Поверх:
3/4
Загальна
240 м2
200 000 грн
Аренда просторного офиса в центре Киева на Подоле в Бизнес Центре класса " В " по адресу улица Верхний Вал. Этаж 2/4 этажного нежилого здания. Общая площадь офиса 252 м2. Фотографии и планировка соответствуют р...
05.02.2026
Поверх:
2/4
Загальна
250 м2
129 509 грн
Популярне на сайті

ОдесаОдеса

КиївКиїв
















