Продається 2-кімнатна квартира
Тернопіль
ID: 5284278
1 937 192 грн
(31 757 за м2)
Кіл-ть кімнат
2
Поверх
12/16
Тип стін
цегла
Загальна площа
61 м2
Стан
житлове
Тип нерухомості
Вторинний ринок
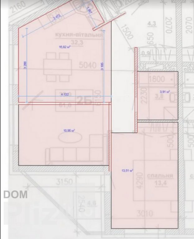
Продається простора двокімнатна квартира у новобудові на фінальній стадії будівництва. Квартира на 12 поверсі. Загальна площа 63 м.кв, простора кухня-вітальня, спальня, суміжний санвузол та просторий передпокій. Квартира в сучасному та комфортному житловому комплексі з добре розвиненою інфраструктурою.
Створено : 05.02.2026
1 937 192 грн
(31 757 за м2)
45 000 $
(738 за м2)
ВІСОН агенція нерухомості
посередник
Створено : 05.02.2026
Переглянуті
Продається квартира 53 м #178;, БАМ, вул. Корольова Будинок однопідїздний, клубного типу. Тиха та доглянута територія. Є паркомісце та дитячий майданчик. До 300 метрів — школа, садочок, супермаркети та вся необ...
05.02.2026
Кімнат
2
Поверх:
6/6
Загальна
53 м2
Кухня
25 м2
2 966 055 грн
Пропонується на продаж квартира у затишному районі міста Кутківці. Квартира розташована на зручному 2-му поверсі цегляного будинку. Загальна площа — 52 кв. м, зручне роздільне планування. Квартира у гарному жит...
05.02.2026
Кімнат
2
Поверх:
2/4
Загальна
52 м2
Житлова
27 м2
Кухня
11 м2
2 707 763 грн
Пропонується на продаж квартира по вул. Смакули. Будинок новий, зданий, повністю обжитий. Квартира розташована на зручному третьому поверсі. Загальна площа 57 кв.м, велика кухня-вітальня, дві окремі кімнати, ...
05.02.2026
Кімнат
2
Поверх:
3/12
Загальна
57 м2
Житлова
25 м2
Кухня
25 м2
3 207 128 грн
Продається квартира у новому, обжитому будинку по вулиці Київська. Квартира розташована на зручному 3 поверсі. Загальна площа 53,4 кв.м, квартира з великою кухнею та двома окремими кімнатами, є засклений балкон...
05.02.2026
Кімнат
2
Поверх:
3/11
Загальна
53 м2
Житлова
31 м2
Кухня
11 м2
3 250 177 грн
Популярне на сайті

ОдесаОдеса

КиївКиїв











