Продається будинок
Лиманський район, Фонтанка, Соборная (Фонтанка)
ID: 5284346
2 798 669 грн
(29 460 за м2)
К-ть приміщень
2
Поверховість
1/2
Тип стін
цегла
Загальна площа
95 м2
Стан
житлове
Тип нерухомості
Будинок
Ділянка:
2
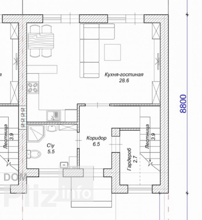
17217 Продам таунхаус на Фонтанке. Тихий район, асфальтированные дороги. 5 секций, для каждой секции выделено 2 парко место.Облагороженная придомовая территория. Зона барбекю на заднем дворе 50кв.м.
Оновлене: 18.02.2026
2 798 669 грн
(29 460 за м2)
64 000 $
(674 за м2)
Анна
посередник
Оновлене: 18.02.2026
Переглянуті
Продам дом в первой Фонтанке. Дом одноэтажный, общей площадью 103.5 квадратных метров. Дом в стиле лофт. Большая кухня, гостинная, две спальни, совмещенный санузел. В комнатах осталось поклеить обои. Земельный...
08.03.2026
Поверховість:
1
Загальна
103 м2
Житлова
65 м2
4 372 920 грн
Продается Таунхаус в Фонтанке. Площадь участка 2 сотки .На заднем дворе площадь 45 м2.Общая площадь таунхауса 94 м2. На первом этаже санузел 6м2,кухня-гостиная 29 м2, гардеробная 3 м2 .На втором этаже две комна...
08.03.2026
Поверховість:
1
Загальна
94 м2
Кухня
29 м2
2 623 752 грн
Продам дом в с Фонтанка. 4.8 сот земли. Свободная планировка. Заведены все коммуникации ( свет, вода, канализация). Терраса. Стены отшпаклеваны. Входная дорогая дверь. Крыша - металочерепица. Дом утеплен и ошту...
08.03.2026
Поверховість:
1
Загальна
100 м2
Житлова
80 м2
Кухня
20 м2
3 935 628 грн
Продаются 2 дома по 90 метров от строителей, двух уровневые, примыкающие друг к другу общей стеной , зеркальной планировки. Продается либо одна часть,либо весь за 80 000 тыс. Постройки 2010г.,ни одной трещинки ...
08.03.2026
Поверховість:
1
Загальна
90 м2
Кухня
19 м2
1 749 168 грн
Популярне на сайті

ОдесаОдеса

КиївКиїв












