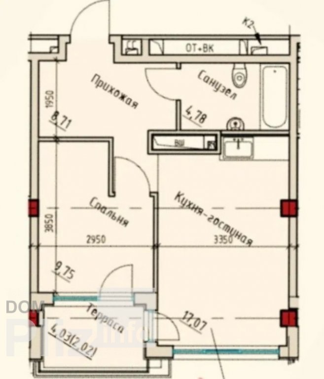
Продається 1-кімнатна квартира
Одеса, р-н Приморський, Софиевская
ID: 5286426
2 123 794 грн
(49 391 за м2)
Кіл-ть кімнат
1
Поверх
5/9
Тип стін
цегла
Загальна площа
43 м2
Житлова площа
10 м2
Площа кухні
17 м2
Стан
житлове
Тип нерухомості
Вторинний ринок
29623 Продам однокомнатную квартиру в Центре города на Софиевской. Располагается на среднем этаже с видом на парк. Общая площадь 43 кв.м. Застекленная лоджия. Просторная кухня-студия.Состояние позволит новым собственникам сделать ремонт по индивидуальному проекту.Облагороженная придомовая территория. Шаговая доступность к Приморскому бульвару, Оперному театру и главным достопримечательностям города.Отличный вариант как для личного проживания, так и под арендный бизнес.
Оновлене: 21.04.2026
2 123 794 грн
(49 391 за м2)
48 300 $
(1 123 за м2)
Анна
посередник
Оновлене: 21.04.2026
Переглянуті
Предлагается к продаже однокомнатная квартира в современном жилом комплексе на Каманина, 44 Жемчужина. Квартира с идеальной стяжкой, оштукатуренными стенами. Морская сторона. Закрытая территория с паркингом, кр...
13.05.2026
Кімнат
1
Поверх:
1/25
Загальна
39.18 м2
Житлова
15 м2
3 297 818 грн
В продаже просторная однокомнатная квартира в новом жилом комплексе с подземным паркингом и благоустроенной территорией от ведущего застройщика Одессы. Предлагается вариант большой кухни-студии с выходом на бал...
13.05.2026
Кімнат
1
Поверх:
9/18
Загальна
40 м2
Житлова
14 м2
Кухня
15 м2
1 538 982 грн
33312 Продается квартира в жилом комплексе бизнес-класса Кандинский на Французском бульваре. Квартира расположена на 24 этаже. Общая площадь 48 кв.м. Состояние от строителей позволяет воплотить ваши дизайнерски...
12.05.2026
Кімнат
1
Поверх:
8/21
Загальна
48 м2
Житлова
23 м2
Кухня
14 м2
5 496 363 грн
Предлагается к продаже 1 ком квартира в элитном жилом комплексе. S 42/21/12, 4/24 эт. Евроремонт. Просторная комната, большая кухня, застекленная лоджия. Мебель, техника, Встроенная кухня. Улучшенная планировка...
13.05.2026
Кімнат
1
Поверх:
4/24
Загальна
41 м2
Житлова
21 м2
Кухня
12 м2
2 858 109 грн
Популярне на сайті

ОдесаОдеса

КиївКиїв













