Продається будинок
Лиманський район, Фонтанка 2, Соборная ул.
ID: 5303269
2 850 432 грн
(30 163 за м2)
Поверховість
1/2
Тип стін
цегла
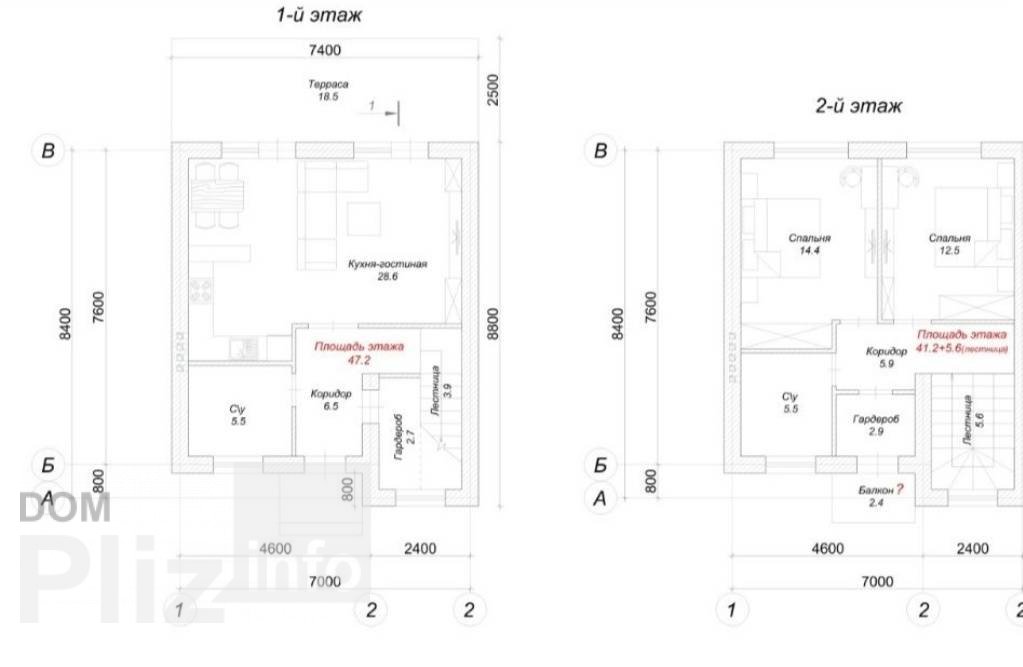
Загальна площа
94.5 м2
Площа кухні
28.6 м2
Стан
житлове
Тип нерухомості
Будинок
Продам таунхаус общей площадью 94.5м.кв. 2 этажа две спальни, два санузла, кухня-студия. Внутренняя отделка возможна под заказ. Два паркоместа, зона барбекю, газ, свет, вода. Близость моря и торговых центров. Посредникам, просьба не беспокоить. ID объекта: 176290
Оновлене: 07.05.2026
2 850 432 грн
(30 163 за м2)
65 000 $
(688 за м2)
АН Премьер Добрвольского, 99
посередник
Оновлене: 07.05.2026
Переглянуті
Продается большой, крепкий дом!!! Фонтанка 2. С ремонтом. Материал постройки - камень ракушняк. 280 м.кв. 3 этажа. 1 этаж: большой подвал и гараж. 2 этаж: кухня студия и каминная, (камин действующий), туалет ва...
07.05.2026
Поверховість:
1
Загальна
280 м2
6 139 392 грн
Продам 2 этажный дом в Фонтанке, который расположен на 10 соток земли. Общая площадь дома 237 кв.м, замечательная современная планировка с переходами, где выделенная зона кухни и гостиной. Дом оснащен дорогой и...
07.05.2026
Поверховість:
1
Загальна
237 м2
Житлова
156.5 м2
Кухня
9.4 м2
11 620 992 грн
Продам 3х этажный уютный и очень тёплый дом в тихом селе Фонтанка-2. Находится рядом с Храмом "Святых Апостолов Петра и Павла", в 10 минутах ходьбы до моря и ТРЦ "Ривьера". Общая площадь дом...
07.05.2026
Поверховість:
1
Загальна
344 м2
Житлова
190 м2
9 209 088 грн
Предлагается к продаже таунхаус в Фонтанке 2,общей площадью 94,5 м.кв. 2- а этажа большая кухня гостиная, две спальни, санузлы на каждом этаже. Прекрасная зона отдыха, барбекю, парковочные места для авто. Близо...
07.05.2026
Поверховість:
1
Загальна
94.5 м2
Кухня
28.6 м2
2 850 432 грн
Популярне на сайті

ОдесаОдеса

КиївКиїв










