Продається виробниче приміщення
Одеса, р-н Хаджибейський, Косовская
ID: 5311692
500 000 грн
(48 за м2)
К-ть приміщень
від 1 до 1
Поверх
цокольний/1
Загальна площа
10333.7 м2
Житлова площа
10333.7 м2
Тип нерухомості
Виробничі приміщення
Ділянка:
129 Cоток
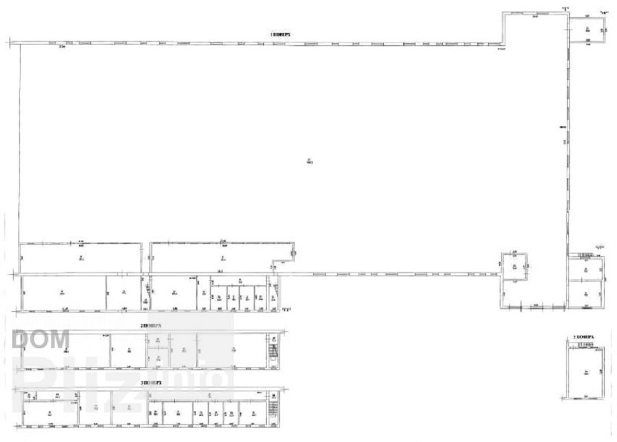
Продаж території 1,5 га під розвиток у Малиновському районі.На території по документам розташована будівля площею 10 333,70 кв.м з висотою 18,5 м і з асфальтобетонним покриттям. Об'єкт розташований на загальній території підприємства. Під'їзди до майданчика широкі і зручні для великовантажних машин. До території можлива прокладка тупикової ж / д гілки.Можливе використання об'єкта під перевалочну або складську базу.Розроблено проект будівлі виробничо - складського комплексу загальною площею 16 200 кв з висотою приміщень 8м і частково обладнаних авторампа, також передбачено простір для в'їзду і маневрування вантажного транспорту.
Створено : 20.02.2026
500 000 грн
(48 за м2)
11 556 $
(1 за м2)
Эдуард Николаевич
посередник
Створено : 20.02.2026
Переглянуті
Продаж виробничої будівлі в Малиновському районі.Об'єкт знаходиться на території з інтенсивним розглядом під забудову об'єктів різного призначення, крім житлової, із зручною логістикою та відмінним розташування...
20.02.2026
Поверх:
1/1
Загальна
3639.8 м2
Житлова
3639.8 м2
Ділянка
20 Cоток
12 547 343 грн
Продаж двоповерхового будинку в Малиновському районі, вул. Косівська.Об'єкт розташований на території підприємства. Будівля 2-х поверховий, загальна площа 885 кв.м, колонного типу, мінімальна кількість несучих ...
20.02.2026
Поверх:
1/1
Загальна
885 м2
Житлова
885 м2
Ділянка
7 Cоток
6 490 005 грн
Продаж виробничих приміщень у Малиновському районі, вул. Косівська. Приміщення загальною площею 1977,90 кв.м. розташовані на другому поверсі двоповерхової будівлі, і мають свою вхідну групу незалежну від першог...
20.02.2026
Поверх:
2/2
Загальна
1977.9 м2
Житлова
1977.9 м2
Ділянка
1 Cоток
12 980 010 грн
Продаж території 1 га під розвиток в Малиновському районі. вул. Косівська. На території по документам розташована будівля площею 5912,2 кв.м з висотою 18,5 м і з асфальтобетонним покриттям. Об'єкт розташований ...
20.02.2026
Поверх:
1/1
Загальна
5912.9 м2
Житлова
5912.9 м2
Ділянка
100 Cоток
11 508 942 грн
Популярне на сайті

ОдесаОдеса

КиївКиїв




















