Продається виробниче приміщення
Одеса, р-н Хаджибейський, Косовская
ID: 5311693
13 054 560 грн
(6 600 за м2)
К-ть приміщень
від 6 до 6
Поверх
2/2
Загальна площа
1977.9 м2
Житлова площа
1977.9 м2
Тип нерухомості
Виробничі приміщення
Ділянка:
1 Cоток
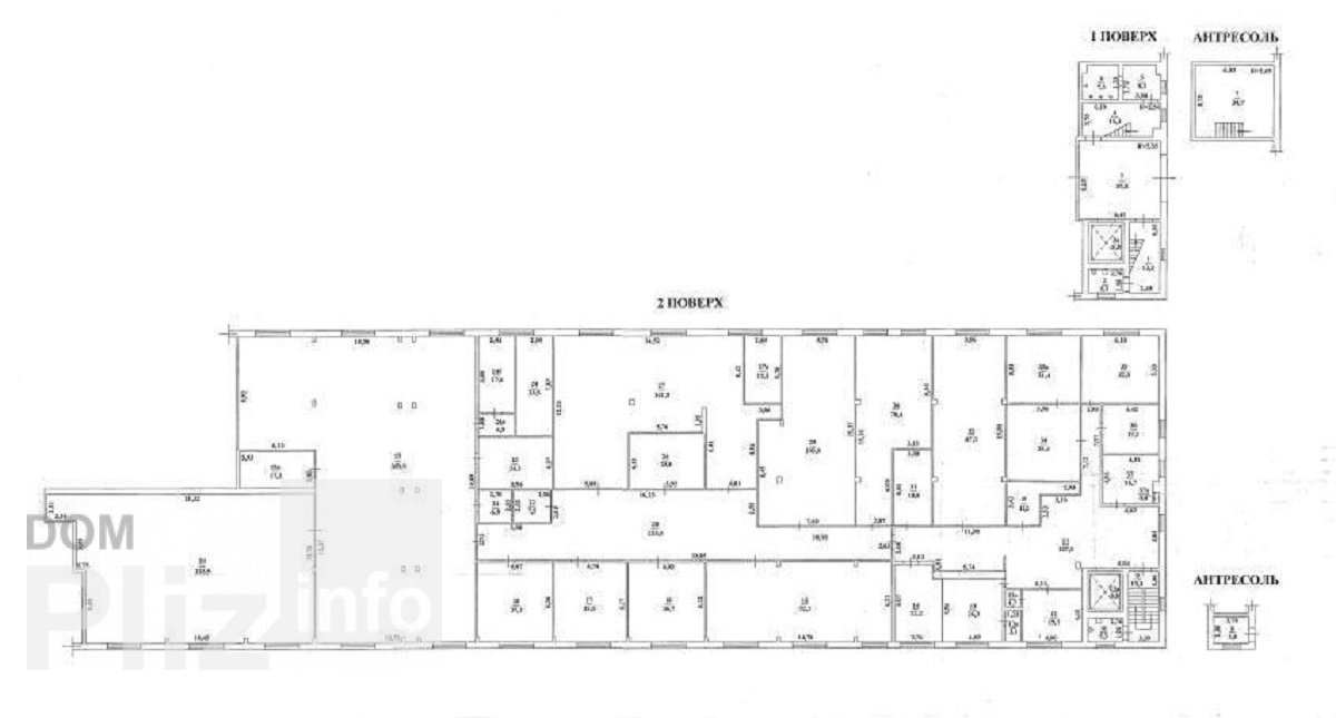
Продаж виробничих приміщень у Малиновському районі, вул. Косівська. Приміщення загальною площею 1977,90 кв.м. розташовані на другому поверсі двоповерхової будівлі, і мають свою вхідну групу незалежну від першого поверху. Всі приміщення в хорошому стані. Заведений світло 380 В, центральний водопровід, міська каналізація. Перегородки між приміщеннями не несуть і при необхідності все приміщення можна об'єднати в один. Будівля обладнана підйомником г / п 3т, який в пакет продажу не входить, але при необхідності можлива його експлуатація для роботи.
Створено : 20.02.2026
13 054 560 грн
(6 600 за м2)
300 000 $
(152 за м2)
Эдуард Николаевич
посередник
Створено : 20.02.2026
Переглянуті
Продаж виробничої будівлі в Малиновському районі.Об'єкт знаходиться на території з інтенсивним розглядом під забудову об'єктів різного призначення, крім житлової, із зручною логістикою та відмінним розташування...
20.02.2026
Поверх:
1/1
Загальна
3639.8 м2
Житлова
3639.8 м2
Ділянка
20 Cоток
12 619 408 грн
Продаж двоповерхового будинку в Малиновському районі, вул. Косівська.Об'єкт розташований на території підприємства. Будівля 2-х поверховий, загальна площа 885 кв.м, колонного типу, мінімальна кількість несучих ...
20.02.2026
Поверх:
1/1
Загальна
885 м2
Житлова
885 м2
Ділянка
7 Cоток
6 527 280 грн
Продаж території 1,5 га під розвиток у Малиновському районі.На території по документам розташована будівля площею 10 333,70 кв.м з висотою 18,5 м і з асфальтобетонним покриттям. Об'єкт розташований на загальній...
20.02.2026
Поверх:
цокольний/1
Загальна
10333.7 м2
Житлова
10333.7 м2
Ділянка
129 Cоток
500 000 грн
Продаж території 1 га під розвиток в Малиновському районі. вул. Косівська. На території по документам розташована будівля площею 5912,2 кв.м з висотою 18,5 м і з асфальтобетонним покриттям. Об'єкт розташований ...
20.02.2026
Поверх:
1/1
Загальна
5912.9 м2
Житлова
5912.9 м2
Ділянка
100 Cоток
11 575 043 грн
Популярне на сайті

ОдесаОдеса

КиївКиїв


















