Продається 4-кімнатна квартира
Кременчук
ID: 5314035
3 572 957 грн
(29 529 за м2)
Кіл-ть кімнат
4
Поверх
8/10
Тип стін
цегла
Загальна площа
121 м2
Площа кухні
9 м2
Стан
житлове
Тип нерухомості
Вторинний ринок
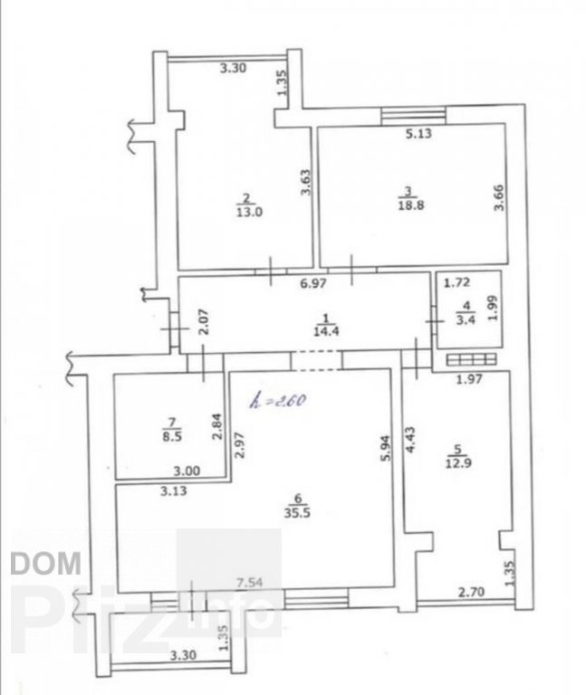
Продам 4-кімнатну квартиру в новобудові, м.Кременчук. Простора квартира з сучасним євроремонтом в спальному районі. Повністю готова до проживання — без додаткових вкладень. Планування: 3 окремі спальні (17,5 м2 , 16,5 м2, 18,8 м2), вітальня з кухнею 35,5 м?, коридор 14,4 м?, санвузол 8,5 м?, гардероб 3,4 м?, кладова з окремим входом 2,5 м?. Переваги: автономне газове опалення, тепла підлога, зовнішнє утеплення, комплект автономного електроживлення (інвертор + АКБ) 5 кВт Інфраструктура та локація: до центру міста - 10 хвилин на автоu002Fмаршрутці, поруч школа, дитячий садок, супермаркети, поліклініка. Транспорт ходить кожні 10-15 хвилин, зручний підїзд до будинку. Будинок обладнаний укриттям, відеоспостереженням та домофоном. У дворі – спортивний майданчик. Можливий продаж за програмою «єВідновлення». Ціна договірна!. Вид обєкта: Вторинний ринок;
Створено : 02.03.2026
3 572 957 грн
(29 529 за м2)
82 900 $
(685 за м2)
Агенція нерухомості СТАНДАРТ
посередник
Створено : 02.03.2026
Переглянуті
Продам 4 кімнатну квартиру.Продам в центрі міста 4 кімнатну квартиру на 3 поверсі в цегляному 9 поверховому будинку, ремонт, класична меблі..Вид обєкта: Вторинний ринок;Тип стін: Цегляний;Меблювання: Так;...
08.02.2026
Кімнат
4
Поверх:
3/9
Загальна
128 м2
Кухня
15 м2
4 956 454 грн
Продам 3-х кімнатну квартиру з ремонтом в елітній новобудові.Квартира з ремонтом, 112,4, на 4 поверсі в 10 поверховому новому будинку за адресою Площа Перемоги 1, 2023 рік здача в експлуатацію. Кухня студія, тр...
08.02.2026
Кімнат
4
Поверх:
4/10
Загальна
112 м2
Кухня
41 м2
7 326 889 грн
Продам 4-х кімнатну квартиру, новобудова, євроремонт.Продам 4-х кімнатну квартиру у Кременчуці , на Раківці. Новобудова (2015 рік), євроремонт. Планування : - коридор-прихожа 14,4 м2 - 3 окремі спальні (17,5 м2...
08.02.2026
Кімнат
4
Поверх:
8/10
Загальна
119 м2
Кухня
9 м2
5 602 948 грн
Продам 4-х кімнатну квартиру в м. Кременчук, центр міста по вул. Небесної Сотні, буд. 11-а. Закрита прибудинкова територія з відео наглядом. Будинок ОСББ. Встановлені лічильники води та газу, електричний лічиль...
08.02.2026
Кімнат
4
Поверх:
4/5
Загальна
119 м2
Кухня
14 м2
3 447 968 грн
Популярне на сайті

ОдесаОдеса

КиївКиїв














