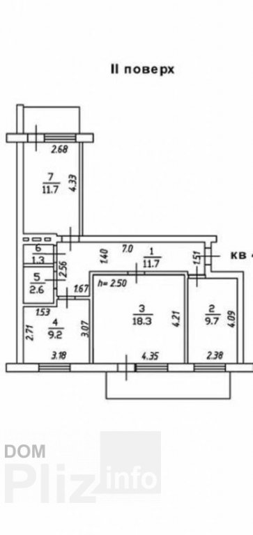
Продається 3-кімнатна квартира
Одеса, р-н Київський, Жукова Маршала просп. (Небесной Сотни)
ID: 5314041
1 982 582 грн
(29 415 за м2)
Кіл-ть кімнат
3
Поверх
2/9
Тип стін
цегла
Загальна площа
67.4 м2
Житлова площа
34 м2
Стан
житлове
Тип нерухомості
Вторинний ринок
Продам трехкомнатную квартиру в кирпичном доме микрорайон Школьный. Квартира расположена на втором этаже 9 этажного дома. Все комнаты раздельные. На полу во всей квартире линолеум. Балконы из большой и средней комнаты застеклены. Санузел раздельный. При отключении света есть вода газ и отопление. В шаговой доступности школа и детский сад. Хорошая транспортная развязка.Возможна покупка в кредит от 10% годовых до 20 лет. Посредникам, просьба не беспокоить.
Оновлене: 02.03.2026
1 982 582 грн
(29 415 за м2)
46 000 $
(682 за м2)
АН Премьер Королева, 33
посередник
Оновлене: 02.03.2026
Переглянуті
Продается трехкомнатная квартира в районе Вузовского. Первый высокий этаж, две комнаты с ремонтом, есть свой тамбур и общий с одним соседом. Квартира чистая, теплая. 4 лоджии на восток и на запад, есть гардероб...
02.03.2026
Кімнат
3
Поверх:
1/16
Загальна
70 м2
Житлова
40 м2
Кухня
9 м2
2 284 279 грн
В продаже трехкомнатная квартира с новым качественным ремонтом. Три раздельные комнаты. Компактная кухня, полностью укомплектована качественным гарнитуром. Просторный застекленный балкон из комнаты. Санузел раз...
02.03.2026
Кімнат
3
Поверх:
8/14
Загальна
66 м2
Житлова
39 м2
Кухня
12 м2
2 629 076 грн
В продаже трехкомнатная квартира в Киевском районе. Квартира с ремонтом в светлых тонах. Комнаты раздельные, гостевая проходная. Санузел смежный, облицован плиткой. Кухня 6,6 м2 имеет все необходимое для пригот...
02.03.2026
Кімнат
3
Поверх:
6/9
Загальна
58 м2
Житлова
39.1 м2
Кухня
6.6 м2
2 499 777 грн
Продам 3-комнатную квартиру сотового проекта на Глушко! Квартира находится в хорошем газовом доме. Квартира светлая и теплая - окна выходят на юго-восток. Состояние жилое, металлопластиковое остекление частично...
02.03.2026
Кімнат
3
Поверх:
4/16
Загальна
72 м2
2 370 478 грн
Популярне на сайті

ОдесаОдеса

КиївКиїв















