Продається виробниче приміщення
Одеса, р-н Хаджибейський, Косовская
ID: 5311690
6 527 280 грн
(1 632 за м2)
К-ть приміщень
від 1 до 1
Поверх
1/1
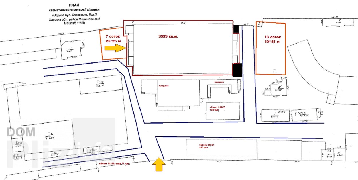
Загальна площа
3999 м2
Житлова площа
3999 м2
Тип нерухомості
Виробничі приміщення
Ділянка:
126 Cоток
удівля під реконструкцію та розвиток у Хаджибейському районі.На сьогодні загальна площа об'єкта 3999,3 кв.м. з висотою стін периметром 15 м.Розроблено передпроектну документацію на реконструкцію в рамках пропонованого об'єкта до адміністративного чотириповерхового будинку загальною площею 17 350 кв.м. з підвалом та мансардним поверхом.Запланована площа приміщень, що здаються в оренду, 11 340 кв.м., а також об'єктів власної інфраструктури, що надають послуги з обслуговування співробітників та гостей.У підвалі будівлі запроектовано фітнес-центр, лазневий комплекс та кухонну зону громадського харчування з підсобними та технічними приміщеннями.На першому поверсі дві вхідні групи, організовані з протилежних сторін будівлі, конференц-зал, приміщення кафе та офіси.Починаючи з другого поверху – офісні приміщення.До будівлі буде відведено територію під благоустрій та місця під паркування автомобілів.Місця та точки підключення комунікацій передбачається від інженерних мереж діючого підприємства на території якого знаходиться ця будівля.
Створено : 20.02.2026
6 527 280 грн
(1 632 за м2)
150 000 $
(38 за м2)
Эдуард Николаевич
посередник
Створено : 20.02.2026
Переглянуті
Продаж виробничої будівлі в Малиновському районі.Об'єкт знаходиться на території з інтенсивним розглядом під забудову об'єктів різного призначення, крім житлової, із зручною логістикою та відмінним розташування...
20.02.2026
Поверх:
1/1
Загальна
3639.8 м2
Житлова
3639.8 м2
Ділянка
20 Cоток
12 619 408 грн
Продаж двоповерхового будинку в Малиновському районі, вул. Косівська.Об'єкт розташований на території підприємства. Будівля 2-х поверховий, загальна площа 885 кв.м, колонного типу, мінімальна кількість несучих ...
20.02.2026
Поверх:
1/1
Загальна
885 м2
Житлова
885 м2
Ділянка
7 Cоток
6 527 280 грн
Продаж виробничих приміщень у Малиновському районі, вул. Косівська. Приміщення загальною площею 1977,90 кв.м. розташовані на другому поверсі двоповерхової будівлі, і мають свою вхідну групу незалежну від першог...
20.02.2026
Поверх:
2/2
Загальна
1977.9 м2
Житлова
1977.9 м2
Ділянка
1 Cоток
13 054 560 грн
Продаж території 1,5 га під розвиток у Малиновському районі.На території по документам розташована будівля площею 10 333,70 кв.м з висотою 18,5 м і з асфальтобетонним покриттям. Об'єкт розташований на загальній...
20.02.2026
Поверх:
цокольний/1
Загальна
10333.7 м2
Житлова
10333.7 м2
Ділянка
129 Cоток
500 000 грн
Популярне на сайті

ОдесаОдеса

КиївКиїв

















